Village at Norfolk, Norfolk MA

Village at Norfolk is a residential subdivision located in Norfolk, Massachusetts, developed by Stonebridge Homes Inc. This community has become a desirable destination for homebuyers seeking modern living in a serene, suburban setting.

Homes in Village At Norfolk

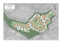
The Village at Norfolk consists of 32 residential homes, each designed to offer comfort, space, and contemporary amenities. Most homes in this subdivision feature three bedrooms and are generally just over 2,000 square feet, though there may be some variation in size. The homes are set across a scenic 7-acre lot, surrounded by classic New England stone walls, giving the neighborhood a distinctive and welcoming character.

Residential Homes in Village At Norfolk

Residential homes in Village At Norfolk are primarily single-family units, designed with modern lifestyles in mind. They typically include open floor plans, spacious kitchens, and attached garages. The architectural style blends traditional and contemporary elements, appealing to a wide range of buyers. The community layout ensures privacy and a sense of neighborhood, with landscaped common areas and easy access to local amenities.

Village At Norfolk Real Estate

Village At Norfolk real estate has attracted significant interest due to its quality construction, thoughtful community planning, and convenient location within Norfolk, MA. The subdivision’s homes have been in high demand, and as of early 2025, the community is completely sold out. Real estate in this area tends to retain value well, thanks to the neighborhood’s reputation and the overall desirability of Norfolk as a residential town.

Homes for Sale in Village At Norfolk

As of the latest updates, all homes in Village At Norfolk have been sold, reflecting the strong demand for properties in this subdivision. When homes do become available for resale, they are typically listed through local real estate agencies and online platforms. Listings often highlight the spacious layouts, modern features, and the community’s attractive setting.

Houses for Sale in Village At Norfolk

While there are currently no new houses for sale in Village At Norfolk due to the development being sold out, prospective buyers can monitor local real estate listings for resale opportunities. The homes in this subdivision are considered premium properties within the Norfolk area, and resale listings tend to attract considerable interest.

Community Features and Lifestyle

Residents of Village At Norfolk enjoy a blend of suburban tranquility and convenient access to Norfolk’s amenities. The neighborhood is close to schools, parks, shopping, and commuter routes, making it ideal for families, professionals, and retirees alike. The community’s design promotes a sense of belonging while maintaining privacy for each household.

Summary Table: Key Features of Village At Norfolk
FeatureDetails
Number of Homes32
Typical Home Size3 bedrooms, just over 2,000 sq ft
Lot Size7 acres
DeveloperStonebridge Homes Inc.
Status (2025)Sold Out
Home StyleSingle-family, modern-traditional
Community FeaturesStone walls, landscaped areas, privacy
 
Conclusion

Village At Norfolk stands out as a sought-after subdivision in Norfolk, MA, offering well-designed residential homes in a thoughtfully planned community. Although all homes are currently sold out, the neighborhood’s reputation ensures continued interest from buyers seeking homes for sale in Village At Norfolk, making it a notable part of the local real estate landscape.

Let me know if you need any further edits!

Village at Norfolk Norfolk MA​​​​​​​​

Schools

School Type Grades
Boyds Crossing, Norfolk MA
Public
9-12
H. Olive Day School
Public
K-2
Freeman-Kennedy School
Public
3-6
King Philip Middle School
Public
7-12

Location

Contact us for more details

Village at Norfolk is a charming residential community located in the heart of Norfolk, Massachusetts. Showcasing a collection of thoughtfully designed single-family and townhouse-style homes, Village at Norfolk is known for its low-maintenance living, scenic surroundings, and vibrant community atmosphere — all just minutes from downtown Norfolk, the MBTA commuter rail, nearby parks, and a variety of local shops and dining options.


Stay Updated on Village at Norfolk!

Fill out the form below to receive:

✅ Current home listings & pricing details
✅ Schedule a private or virtual tour
✅ HOA fee information, neighborhood features & financing options

At Key Prime Realty, we specialize in Norfolk MA homes and real estate. Whether you’re a first-time buyer, a downsizer looking for convenience, or simply searching for a welcoming community with easy access to local amenities and transit, we’re here to guide you every step of the way.
Reach out today to learn more about available homes in Village at Norfolk!

Single Family

Corporate Headquarters
30 Eastbrook Rd, Dedham, MA 02026, USA.

FAQ Section

What types of homes are available in Village at Norfolk, Norfolk MA?

Homes in Village at Norfolk include a mix of beautifully designed single-family homes and townhouse-style residences, offering flexible layouts, modern finishes, and low-maintenance living.

Are there new or move-in ready homes for sale in Village at Norfolk?

Yes, there are often move-in ready homes for sale in Village at Norfolk, including recently built residences with updated kitchens, open-concept floor plans, and attached garages.

What is the price range of residential homes in Village at Norfolk?

The residential homes in Village at Norfolk typically range from the mid $600,000s to the high $800,000s, depending on the size, location, and upgrades of each home.

What makes Village at Norfolk real estate appealing to buyers?

Village at Norfolk real estate is highly sought-after for its convenient location, charming community feel, low-maintenance lifestyle, and proximity to the MBTA commuter rail, shopping, dining, and scenic walking trails.

How large are the homes in Village at Norfolk?

Most homes in Village at Norfolk range from approximately 1,800 to 2,600 square feet, with 2 to 4 bedrooms, spacious living areas, and attached garages for added convenience.

Are there HOA fees for houses for sale in Village at Norfolk?

Yes, most houses for sale in Village at Norfolk are part of a homeowners association (HOA) that covers common area maintenance, landscaping, and other community services. Contact Key Prime Realty for current HOA fee details.

Is Village at Norfolk a good community for downsizers or retirees?

Absolutely. The residential homes in Village at Norfolk are ideal for downsizers, retirees, and those seeking a simplified lifestyle, with easy-care homes and amenities close at hand.

How can I schedule a tour of homes for sale in Village at Norfolk?

It’s easy—reach out to Key Prime Realty to schedule a private or virtual tour of homes for sale in Village at Norfolk and explore available properties.

Are pets allowed in the Village at Norfolk community?

Yes, many residential homes in Village at Norfolk are pet-friendly, but specific HOA guidelines may apply. We can provide details on pet policies and restrictions.

Why should I work with Key Prime Realty to buy a home in Village at Norfolk?

At Key Prime Realty, we specialize in Village at Norfolk real estate and the surrounding Norfolk area. Our local expertise, tailored service, and up-to-date market insights help you find the best houses for sale in Village at Norfolk with confidence.

Massachusetts's Top Real Estate Markets & Homes for Sale

Compare listings

Compare